4月1日,深圳市龙岗区城市更新和土地整备局发布关于《龙岗区龙岗街道新生社区低山村城市更新单元规划》的公告。
深圳市龙华区城市更新和土地整备局发布关于福城街道福城南产业片区土地整备利益统筹项目土地整备规划(草案)公示的通告。
深圳市龙岗区人民政府 深圳市规划和自然资源局龙岗管理局发布关于园山街道西坑社区西坑粮库工业区块线局部调整方案的公示。
一、新生社区低山村城市更新单元规划公告
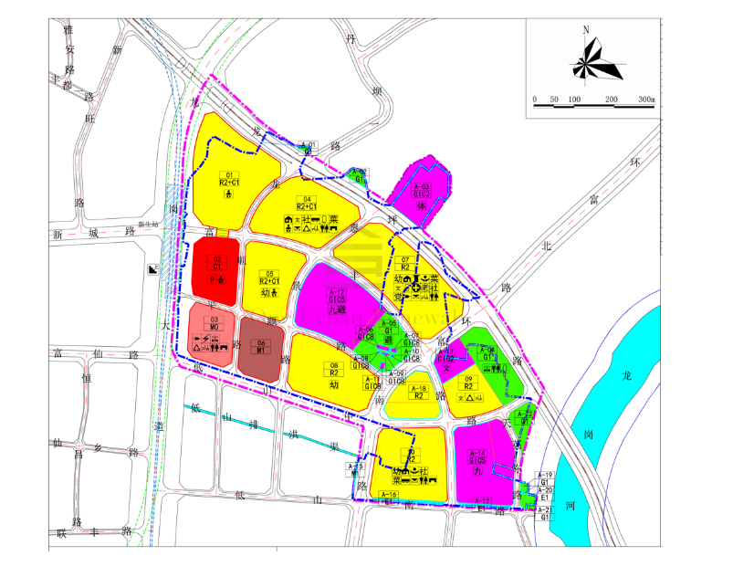
龙岗区龙岗街道新生社区低山村城市更新单元于2018年8月被列入《2018年龙岗区城市更新单元计划第六批计划》,该项目于2021年6月21日发布规划公示,现已经市城市规划委员会建筑与环境艺术委员会审批通过,现予以公告。申报主体为深圳市新生股份合作公司 。
项目位于深圳市龙岗区龙岗街道新生社区,东邻龙岗河,西接龙岗大道,南靠低山南路,北为龙坪路。

主要技术经济指标:
该城市更新单元范围用地面积581437㎡,拆除范围用地面积463042.3㎡,拟更新方向为二类居住、商业、新型产业和普通工业用地功能, 开发建设用地面积260051.1㎡(含划入零星用地面积2509.4㎡),规划容积1871320㎡,规划容积率7.2。

二、福城南产业片区土地整备利益统筹项目土地整备规划(草案)公示
福城街道福城南产业片区土地整备利益统筹项目土地整备规划已经龙华区土地整备工作领导小组会议审议通过,根据《中华人民共和国城乡规划法》《深圳市城市规划条例》《市规划国土委关于规范土地整备规划审批有关事项的通知》(深规土〔2018〕805号)等有关规定,已于2022年3月25日起对福城街道福城南产业片区土地整备利益统筹项目土地整备规划(草案)进行公示,因公示内容中的航拍图存在技术偏差,现予以重新公示:
项目概况:
福城街道福城南产业片区土地整备利益统筹项目位于龙华区福城街道,项目实施范围770275.4㎡。


经规划研究,项目总留用土地面积183136.2㎡,规划容积1020510㎡。

其中住宅294640㎡(含公共住房41074㎡),商业2000㎡,厂房571030㎡,产业配套用房118500㎡(含小型商业服务设施3500㎡,配套宿舍115000㎡),公共配套设施(含地下)34340㎡[含2个12班幼儿园各为5700㎡、占地各为3600㎡,2个党群活动中心(含社区管理用房、便民服务站)共5000㎡,2个社区老年人日间照料中心各为1500㎡,2个社区健康服务中心共3500㎡,2个社区警务室各为150㎡,母婴室10㎡,文化活动室1000㎡,社区菜市场1000㎡,物流配送站2000㎡,公交首末站4300㎡,2个公共充电站共1800㎡,2个小型垃圾转运站各为150㎡,2个再生资源回收站各为60㎡,2个公共厕所各为60㎡,2个环卫工人作息房各为20㎡,2个通信汇聚机房共450㎡]。另配建3处社区体育活动场地共占地6400㎡。物业服务用房按照《深圳经济特区物业管理条例》予以核定。

项目签约实施方为深圳市龙华建设发展有限公司(简称“龙华建发”)。龙华建发是龙华区出资设立的国有独资企业,2015年1月挂牌成立,注册资本48亿元,业务范围涵盖人才安居房、保障房、农贸市场、环卫绿化、保安服务、金融投资、水务服务、信息管道等多个城市发展和民生保障领域。
三、西坑社区西坑粮库工业区块线局部调整方案公示
西坑粮库位于龙岗区园山街道西坑社区,盐排高速东侧。经核工业区块线,该项目共有13691.47㎡用地涉及一级工业区块线,根据[横岗西坑片区]法定图则06-18地块、06-21地块规划调整方案,项目所在的一级区块线内部分发展备用地调整为仓储用地和公园绿地,深圳市规划和自然资源局龙岗管理局组织编制了《园山街道西坑社区西坑粮库工业区块线局部调整方案》,上报龙岗区政府专项工作会议审议通过后,现已经深圳市规划和自然资源局审议通过。根据公开公平公正原则,现将该方案及有关事项进行公示:
一、调出地块共2块,位于龙岗区园山街道面积合计24919.43㎡,为一级工业区块线。根据[横岗西坑片区]法定图则,调出地块规划用地性质为林地、农林和其它用地。
二、调入地块共1块,位于龙岗区园山街道面积26245.62㎡。根据[大运权纽站及其周边地区]法定图则,调入地块规划用地性质为普通工业用地、农林和其它用地及城市道路用地。
三、本次园山街道西坑社区西坑粮库工业区块线局部调整方案,调入地块用地面积不少于调出地块面积,龙岗区工业区块线总体规模不减少、单个区块线内的工业用地面积不减少,工业用地占比不减少,符合《深圳市工业区块线管理办法》局部调整相关要求。本方案调出和调入地块调整前后对比图详见附件。
四、公示期为7天(2022年4月1日-2022年4月7日)。

调入地块基本情况表:

